Location: George Adekunte Close, GRA Extension, Olokemeji, Abeokuta, Ogun State, Nigeria
Oluwaseun House is a residential project that offers a harmonious blend of contemporary architecture and natural serenity. It is thoughtfully designed to deliver a refined yet comfortable lifestyle. Nestled in a lush environment and complemented by recreational amenities, this home is perfect for families seeking tranquillity and activity.
Set on a generously sized plot, the residence combines aesthetic appeal with functional outdoor spaces designed for both leisure and lifestyle:
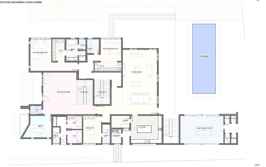
The ground level is a masterclass in intelligent spatial planning—balancing openness with private sanctuaries:
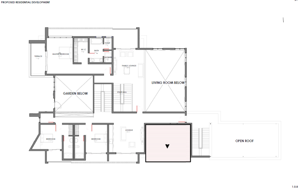
The upper floor continues the theme of thoughtful design with areas crafted for both
family time and social gatherings:








